Проект каркасного садового дома
| Площадь | Этажей | Комнат |
| 130.10 | 2 | 4 |
Но не знаете во сколько обойдётся строительство дома?
Заполните заявку и получите ответ на Ваш вопрос!
| Основные параметры проекта | |
|---|---|
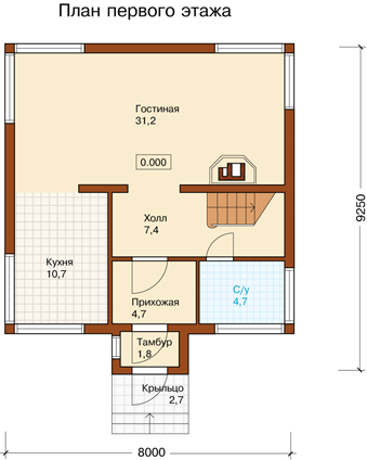
| Жилая площадь, кв.м | 74.50 |
| Материал стен | Деревянный каркас с утеплителем |
| Материал перекрытий | По деревянным балкам |
| Тип фундамента | Монолитная ж/б плита |
| Внешняя отделка | плитка фасадная, сайдинг |
| Покрытие кровли | Битумная черепица |
| Тип крыши | Скатная |
| Автор | ООО АСП |
Проект каркасного садового дома выполнен по аналогии популярного проекта G-110-1P. Небольшие изменения внутренней планировки обусловлены стремлением архитекторов создать еще более оптимальные условия для комфортного проживания семьи из 3-5 человек. Использование в проекте каркасной технологии позволит возвести дом в кратчайшие сроки и по оптимальной цене. Высота потолка первого этажа – 2,74 м, второго – 2,69 м. Отделка фасадов предполагает использование фасадной плитки и сайдинга, в сочетании со строгими архитектурными линиями эти материалы создают современный и респектабельный образ дома.
Строительный Комплект №2 (АР + КР + П + ДК)
|
41 000 руб. |
Архитектурно-строительные чертежи (АР + КР)
Минимальный комплект чертежей |
33 000 руб. |
|
Строительный паспорт (П)
Паспорт проекта - выдержка из архитектурного раздела. Необходим для согласования и утверждения у районного архитектора. |
4 000 руб. |
|
Дополнительный комплект (ДК)
Необходим для расчета сметы и передачи чертежей строителям. |
4 000 руб. |
| Инженерный раздел | Нет |






